Quadrilocale in vendita

Genova, Via paradiso - Cornigliano Ligure
€ 65.000
5 locali 5 locali
115 Mq 115 Mq
1 bagno 1 bagno

Quadrilocale in vendita

Genova, Via paradiso - Cornigliano Ligure

Descrizione annuncio

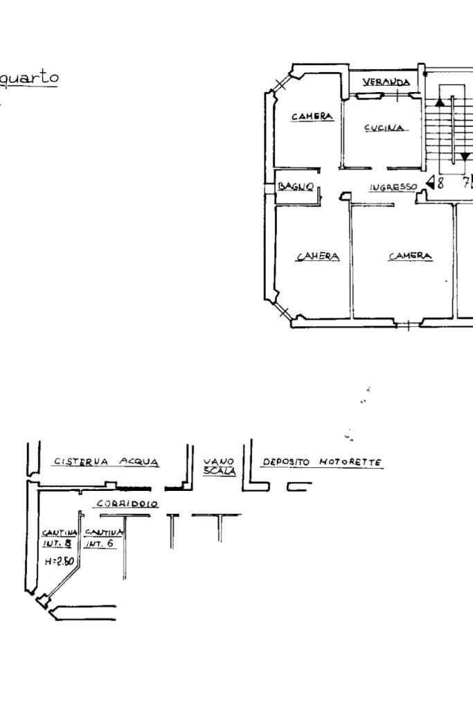
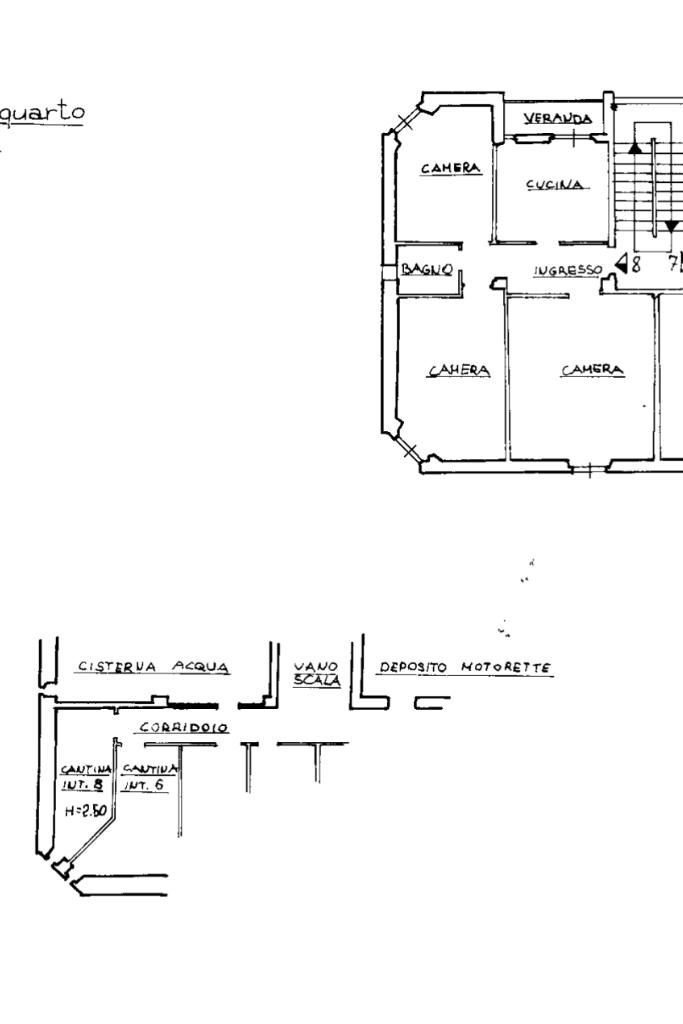
Nella parte alta di Coronata a Genova, si trova un appartamento di 115 mq situato in un piano alto di una palazzina recentemente ristrutturata, con facciate e tetto nuovi. L'immobile offre una vista aperta e una luminosità che pervade ogni ambiente. La disposizione interna comprende due camere da letto, una sala accogliente e una cucina con balcone verandato, ideale per momenti di relax. Il riscaldamento autonomo garantisce comfort in ogni stagione. Situato in Via Paradiso, l'appartamento beneficia di posti auto condominiali, una comodità rara nella zona. Completa la proprietà una cantina, utile per lo stoccaggio. Questa soluzione abitativa rappresenta un'opportunità interessante per chi cerca un'abitazione spaziosa e ben collegata, in un contesto urbano vivace e ricco di servizi.

Mostra tutto

Nelle vicinanze

Trasporto pubblico Trasporto pubblico
Brin
Brin
1,4 Km
Genova Borzoli
Genova Borzoli
1,1 Km
stazione di Genova Rivarolo
stazione di Genova Rivarolo
1,2 Km
Perrone 4 / Lorenzi
Perrone 4 / Lorenzi
380 m
Monte Guano 1 / Santuario
Monte Guano 1 / Santuario
390 m
Ricariche auto elettriche Ricariche auto elettriche
EnelX Fast IKEA Genova
900 m
Leroy Merlin Genova | EnelX
910 m
Europam - Campi - ZapGrid
1,0 Km
Genova Botticelli | EnelX
1,3 Km
EnelX Sant'Elia Genova
1,4 Km
Scuole Scuole
Scuola Secondaria
900 m
Scuola dell'Infanzia Arcobaleno
900 m
Scuola Primaria 2 Giugno
910 m
Istituto Comprensivo di Borzoli
920 m
Scuola elementare Don Bosco
1,0 Km
Farmacia Farmacia
Farmacia Pescetto
980 m
Farmacia Certosa
1,1 Km
Farmacia Testori
1,2 Km
San Martino
1,2 Km
Parafarmacia Erboristeria Il Girasole
1,2 Km
Ospedali Ospedali
Ospedale Padre Antero Micone
2,2 Km
Ospedale Villa Scassi
2,2 Km
Supermercati Supermercati
Il forno di Felice - Minimarket
850 m
Di Più
850 m
Punto Simply
920 m
Ekom
1,1 Km
Carrefour Express
1,1 Km
Negozi Negozi
Distribuzione Tessile
860 m
Da u Tappe
1,1 Km
Negozi
1,2 Km
Panificio Fratelli Corona
1,2 Km
Panificio focacceria Garibaldi
1,2 Km
Bar Bar
Bar Massa
730 m
Bar
910 m
Baobab Bar
910 m
Bar Jolly
930 m
Bar Pinin
1,1 Km
Ristoranti Ristoranti
Mattelin
280 m
Ristorante La Trattoria
400 m
Bar Trattoria Glicine
850 m
Trattoria La Baracchetta
970 m
Trattoria La Rustica
1,0 Km
Mostra tutto

Caratteristiche

Rif.:
61210157
Piano:
4 di 4 (Piano alto)
Posti auto:
1
Balconi:
1
Camere da letto:
2
Arredamento:
Assente
Mostra tutto
Prezzo Prezzo
€ 65.000
Rata mutuo Rata mutuo
€ 309 / mese
Spese annue Spese annue
€ 700
Proponi il tuo prezzoProponi il tuo prezzo

Classe Energetica

F
F
F
F
F
F
F
F
F
Anno di costruzione:
1960
Riscaldamento:
Autonomo
Tipo impianto:
A radiatori
Tipo alimentazione:
Metano

Ti interessa visionare l'immobile?

Fissa un appuntamento  Fissa un appuntamento

Richiedi informazioni

Clicca su Leggi per aprire l'informativa
* Questi campi sono obbligatori

Calcola il tuo mutuo

Semplice e senza impegno
Anticipo

( % )
Mutuo

( % )

pochi semplici passi

inserisci i tuoi dati
Questionario completato
Grazie per aver richiesto un appuntamento senza impegno con un nostro Consulente del Credito e Assicurativo.

Hai inserito correttamente tutti i dati necessari e a breve riceverai una e-mail con un link da convalidare per inviare i tuoi dati.
Affiliato
Mgl Immobiliare Snc
Via Cornigliano, 322 r 16121 Genova (GE)

Il nostro staff


  • Gianluca Migliaccio
    Affiliato
Via Cornigliano, 322 r 16121 Genova (GE)
Zona: Cornigliano
Mostra su mappa
Orari: Lun - Ven 9:00-12:30 / 15:00-19:30 Sabato 9:00-12:30 / 15:00-18:00
Affiliato
Mgl Immobiliare Snc
Via Cornigliano, 322 r 16121 Genova (GE)

2026 Tecnocasa Franchising S.p.A. - P. IVA 08365160152 - Via Monte Bianco 60/A 20089 Rozzano (MI). Ogni agenzia ha un proprio titolare ed è autonoma. Privacy policy | Policy utilizzo | Cookie policy